Skip to content
DESIGN AI LTD
PROJECTS
SERVICES
ABOUT US
CONTACT US
Main Menu
DESIGN AI LTD
PROJECTS
SERVICES
ABOUT US
CONTACT US
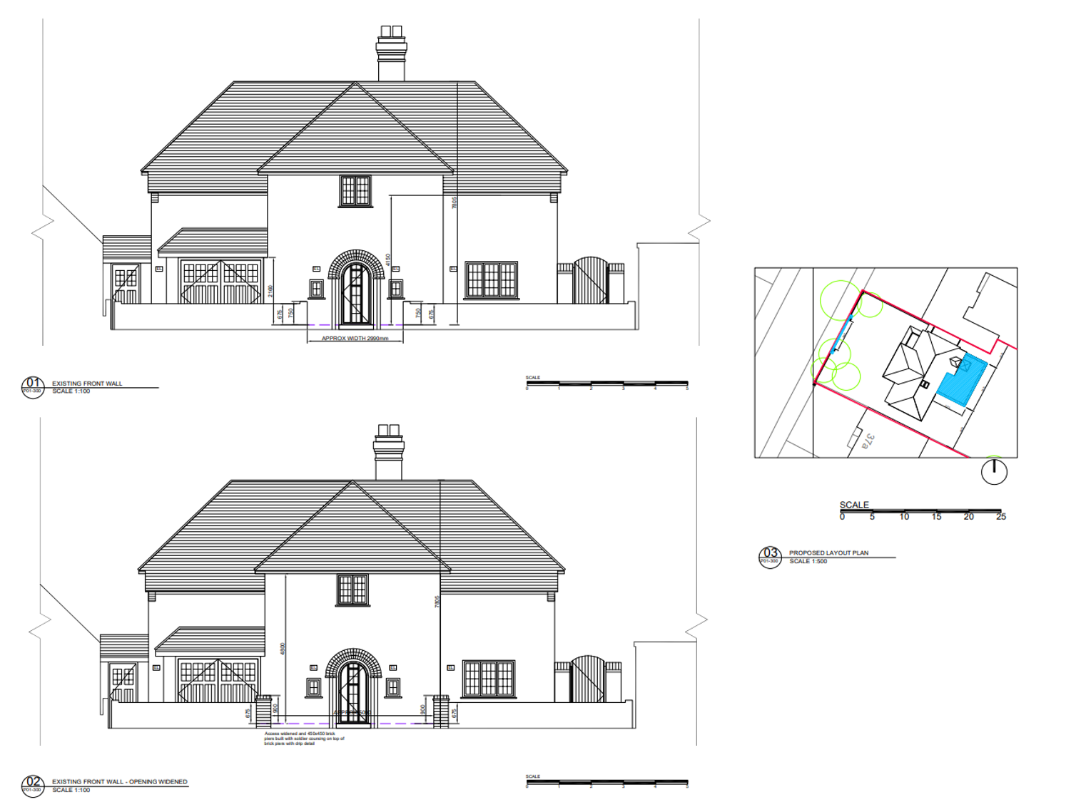
Conservation Area Residential Project
Single-Storey Rear Extension | Residential